top of page

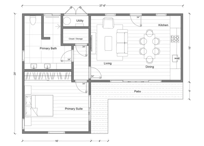
Umbra 1 Bed ADU
755
SF


1 Bed
1 Bath

No Garage

Umbra 1 Bed ADU
755
SF


1 Bed
1 Bath

No Garage
Gallery
Upcoming Projects
Oakley, Utah
Pre-Delivery
Estimated Start Date 12/15/25
Estimated Completion 4/1/25
Birmingham, Alabama
In Progress
Start Date 10/20/25
Estimated Completion 12/15/25
Midway, Utah
Pre-Delivery
Estimated Start Date 12/1/26
Estimated Completion 3/1/26
Bow, Washington
Pre-Delivery
Estimated Start Date 2/1/26
Estimated Completion 4/1/26
bottom of page












